COLUMN
コラム
2020.06.19
目次 [非表示]
家事動線とは、その名の通り、家事を行う際に表される人の動きの線のことです。
いくつもの作業を同時進行で行うことが多い家事。料理、洗濯、掃除、子どものお世話などの様々な家事を同時に行うことで、キッチン、洗面、リビングを何回行き来することになるのでしょう。
家事による移動を減らすことで、家事を効率よく、無駄な時間がかからずに行えるようになります。
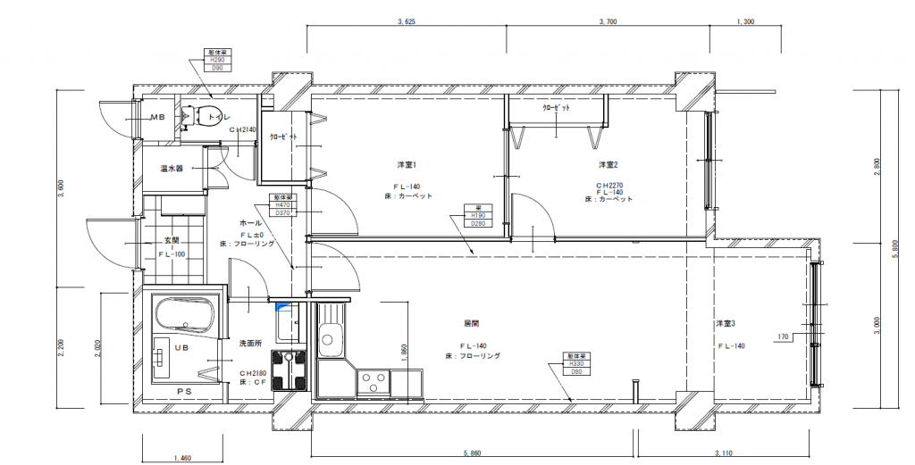
このコラムでは実例の間取り図面をご紹介しながら、家事導線を効率良くするヒントをお伝えします。
例えば、家事を行うことが多い洗面室とキッチン。
壁で仕切られていると一度リビングを通って洗面室に行く必要があります。そこを、キッチンと洗面室を直接行き来できるようになると移動がとても短くなり、効率的に家事をこなすことができるようになります。
キッチン、洗面室、リビングダイニングを回遊できる間取りにする。家の中をぐるっと回れる間取りにすることで、行き止まりがなく両方向の移動が可能になり、スムーズな家事の流れがうまれます。



上記の間取り図面を見てみると、Afterの図面ではキッチン→洗面室→お風呂が回遊できる間取りになっています。
水廻りの家事はこの動線で完結出来ます!
実際にこちらの間取りを体験したい、見てみたいという方はホームテックのショールームへ是非お越しください。
聖蹟桜ヶ丘ショールームには、こちらの回遊導線を体験出来るショールームをご用意しています。



キッチン内でも動線はあります。
冷蔵庫から食材を出して、調理台で食材の準備、コンロで調理、食器棚から食器を出して盛り付け。その間に、シンクで洗い物、ごみはゴミ箱に。当たり前になっていて、意識する方は少なかったかもしれませんが料理をするだけでもこんなにも同時作業が。
普段の動きを想像して、シンク、収納棚、冷蔵庫、調理家電、ごみ箱などどのような配置になっていれば自分が楽になるかを考えてみましょう。
最近ではキッチンに「パントリーを設置したい」というご要望をよく伺います。
キッチンと食品庫が離れていると、それだけで家事の時間が増えてしまいますよね。そのため、キッチンから直結しているパントリーをおすすめします。


こちらのお客様は農業をされているため、特にキッチン収納が重要でした。キッチン→パントリーを直結させ、大容量の収納を実現。
キッチンとダイニングテーブルをつなげることで、料理をすぐに運んだり片付けたりできるようになりました。
洗濯は洗って干すだけでなく、たたむ、しまう、必要があればアイロンをかけるなど工程が多い家事の一つです。
洗濯機、干し場、収納スペースを一つの場所にまとめることで家事がぐんと楽になります。
洗面室にちょっとした作業台を設ければ、アイロンかけや、たたんだ洗濯物を置くなどにも使えて便利です。洗濯物をお外に干す場合でも、室内干しユニットをつけるこことで雨の日や、夜にも洗濯ができ家事がスムーズになります。

家事動線を考えるあまり、生活動線を考えずに作られた住まいは、暮らしやすいとはいえません。家事動線を考えつつ、日常生活の動線もスムーズに流れるように考えることが重要なポイントです。
中古住宅のリノベーションの際は、構造や規約のため、理想の家事動線の間取りが叶えられない可能性もあります。
どうしても抜けない柱や、削ることのできない梁(はり)があります。
またマンションでは「共有部分」「専有部分」でリノベーションが出来るかどうか変わります。
事前にリノベーションのプロに同行してもらい、理想の間取りを実現出来るのか確認をしてから購入をすることをおすすめします。
家事を楽にする家事動線を意識したポイントをご紹介してきました。
ただし、家事動線は自身の家庭に合わせて考えることが必要です。普段の家事で、困っていること、不便に思っていることなどの悩みを振り返り、最適な間取りを見つけましょう。
リフォームプライスでは、ご家庭に合わせた家事動線を考えたリノベーションをご提案します。毎日の家事。少し楽になることでゆとりある生活を送ることができるかもしれません。