EVENT

中古マンションリフォームの工事現場からオンラインにて工事の様子を3月の13日と20日の2回に渡ってお伝えいたします。
どんな設備機器や建材を使っているのか、リフォームのこだわりポイントなどをお届け!
解体後の写真をお見せしながら現在の工事後の状態になるまでの過程をご説明させていただきます。
リフォーム物件:中古購入した築7年のマンション
リフォーム内容:浴室交換/キッチン交換(位置変更有)/造作洗面台設置/子供部屋に手洗い場新設/クローゼット新設/カウンター新設/壁紙張替え、フローリング張替え
工事費:約700万円
※現場写真


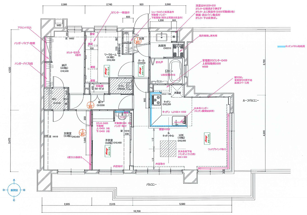
※リフォーム後平面図

【このような方へおすすめ】
【プログラム】
◯オンライン内覧会ご案内役
リフォームコンサルタント歴6年
現在マーケティング部所属
坊之下(ぼうのした)

◯参加方法
オンラインツール【Zoom】を使用いたします
①フォームまたはお電話にてご予約
②モバイルをご利用の場合はzoomアプリをインストール(PCの場合はインストール不要)
③弊社から【Zoom】のご使用方法とご参加に必要なURLをお送りします
④当日お時間になりましたらURLをクリックしていただきパスワードを入力いただくだけ!
◯参加費用
完全無料(要予約)
皆様とお会いできることを楽しみにしております!
是非、この機会にご参加くださいませ!
住所※ご自宅から参加出来ます