WORKS
施工事例
神奈川県川崎市N様邸
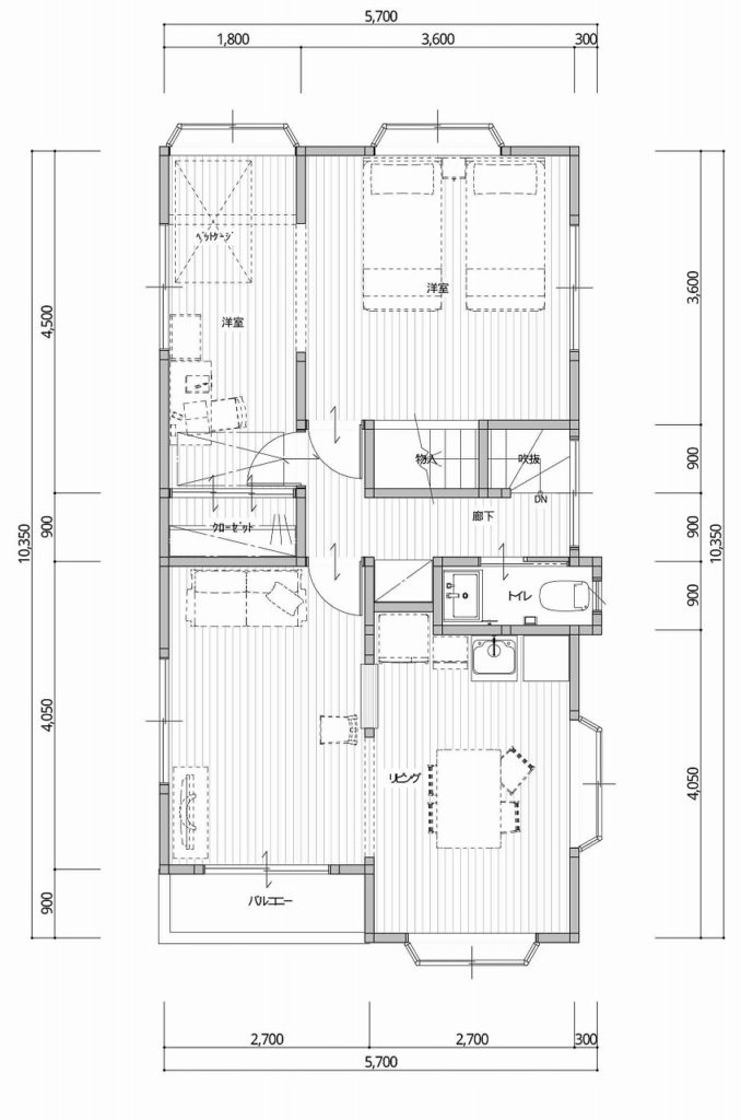
木造の2階建てのお家で、1階を親世帯が、2階を子世帯が使っていたのですが、主に寝室しかなかった2階部分のお部屋の改装を、ということでご相談いただきました。
最初にお客様宅を訪問させていただいたときは、2階に簡単な水場が欲しいというのと、トイレがとにかく狭いというのが一番の問題点でした。
その他、色々お話を伺っていくと、日当たりの良い南側の2部屋を寝室として使っているので、2室を1室にしてリビングダイニングにしたいというお話も出て、南北を逆転して使えるよう、収納の使い勝手や家具の配置を見直し、水場をどこに持ってくるか検討しました。
初めてお家に伺った時からインテリアや小物がとても素敵で、奥様やご家族のたくさんの「お気に入り」がぎゅっと詰め込まれているような印象でした。建材や設備機器等は、既存のインテリアに馴染むよう、丁寧に厳選していきました。
担当店:リフォームプライス町田店
タイプ
戸建
家族構成
母・兄/ご夫婦(施主)/子ども1人
築年数
23年
施工金額
213万円
工期
1か月
リフォーム面積
32.67㎡
使用した商品
■LIXIL Panasonic maruzen
リフォーム箇所
キッチン
川崎市麻生区の中古マンションの状況、リフォームを含めた費用についてこちらで詳しく解説しています
(コラムページが開きます)
WORKS同じタグの付いている事例

デザインリフォーム
子育てしやすい家
在宅ワークしやすい家
家族の会話が増える

収納を充実させたい
リフォームで食事が楽しくなる
家族構成の変化
子供の独立を機に
一人を愉しむ空間
夫婦でゆったりくつろぐ空間
ロードバイクを愉しむ
コレクションを大切にする
家族の会話が増える
間取り変更あり(間取り図掲載)

収納を充実させたい
デザインリフォーム
リフォームで食事が楽しくなる
夫婦でゆったりくつろぐ空間
家族の会話が増える
間取り変更あり(間取り図掲載)

デザインリフォーム
リフォームで食事が楽しくなる
コンテスト受賞事例
趣味の空間
コレクションを大切にする
家族の会話が増える

デザインリフォーム
夫婦でゆったりくつろぐ空間
在宅ワークしやすい家
コンテスト受賞事例

中古を買ってリフォーム
デザインリフォーム
リフォームで食事が楽しくなる
夫婦でゆったりくつろぐ空間
在宅ワークしやすい家