WORKS
施工事例
東京都調布市R様
●リフォームのきっかけ
10年前に中古で購入され2世帯で住んでいたご自宅。子供の今後の成長を考えて、もっと使いやすく広く感じる間取りにしたいと思ったのがきっかけ
●ご要望
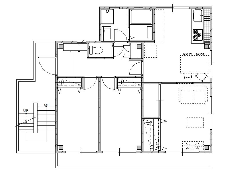
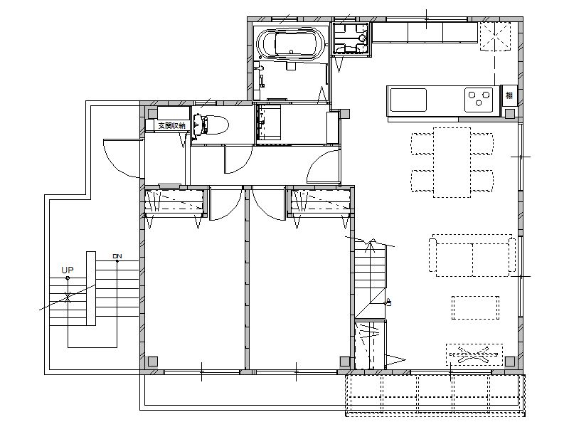
・子供の今後の成長を考えて、うまく使えていない屋根裏を使って部屋を一部屋増やしたい
・広いキッチンにしたい
・部屋を繋げてLDKを広くしたい
・収納スペースも確保したい
・奥様の好きな色(ブルーグレー)を使いたい
●スタッフのコメント
当初お考えではなかった水廻りの位置を工夫し、リビングをより広げる提案を致しました。また、より広く感じていただく為の工夫として吹抜とスケルトン階段を採用致しました。ご家族の中心であるリビングをより繋がり感のあるものにし、収納力については3階の床を延ばすことで解決。元の1.5倍以上の収納力を確保しました。
■お客様のコメント
いくつも提案下さり見積段階からワクワクする気持ちにさせてくれました。 私の希望を聞き入れつつ沢山アイデアを出してくれたおかげで、自分が思った以上の素敵なお家づくりができたと思っています。 リフォーム後は家にいるのが楽しくて楽しくて!子供もすごく喜んでくれていて、友達に自慢しています。
WORKS同じタグの付いている事例

デザインリフォーム
リフォームで食事が楽しくなる
家族の適度な距離感を創る

二世帯住宅
収納を充実させたい
子育てしやすい家
リフォームで食事が楽しくなる
実家への住替え
夫婦でゆったりくつろぐ空間
家族の会話が増える
間取り変更あり(間取り図掲載)

収納を充実させたい
デザインリフォーム
リフォームで食事が楽しくなる
夫婦でゆったりくつろぐ空間
家族の会話が増える
間取り変更あり(間取り図掲載)

収納を充実させたい
デザインリフォーム
リフォームで食事が楽しくなる
家族構成の変化
子供の独立を機に
一人を愉しむ空間
自然素材に囲まれる
夫婦でゆったりくつろぐ空間
趣味の空間
間取り変更あり(間取り図掲載)

収納を充実させたい
家族構成の変化
子供の独立を機に
在宅ワークしやすい家
コレクションを大切にする

中古を買ってリフォーム
収納を充実させたい