WORKS
施工事例
神奈川県川崎市N様
■リフォームしたきっかけ
お水廻りの経年劣化をきっかけに、今より住みやすいようにリフォームしたいと考えた。収納も少なく、収納計画も見直したかった。
■お客様のご要望
・収納を充実させたい
・キッチンを対面化して料理をしながらTVを観たい
・水廻りを交換したい
■ポイント
デザイン面:耐震上取れなかった梁と柱は木目のクロスを貼ってお部屋のワンポイントに
デザイン面:和モダンをイメージしてリビング入り口の引戸は格子のデザインを採用しました
デザイン面:TVは壁掛けにして床をすっきりと使えるようにしました
収納計画:床にモノを置きたくないというご要望をパントリーやキッチン背面の大容量収納で解決しました
-この事例がピックアップされているコラム一覧-
タイプ
木造
家族構成
ご夫婦+お嬢様2人+猫ちゃん1匹
築年数
22年
施工金額
660万円
工期
2か月
リフォーム面積
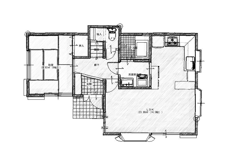
40㎡
使用した商品
キッチン:LIXIL「シエラS」
トイレ:LIXIL「アメージュZ」
洗面化粧台:Panasonic「シーライン」
リフォーム箇所
トイレ、洗面、リビング、キッチン、ダイニング、浴室、寝室、廊下
施工事例No.3210000445
WORKS同じタグの付いている事例

中古を買ってリフォーム
デザインリフォーム
リフォームで食事が楽しくなる
在宅ワークしやすい家
趣味の空間
間取り変更あり(間取り図掲載)

収納を充実させたい
リフォームで食事が楽しくなる
ペットと快適に過ごす
子供の独立を機に
夫婦でゆったりくつろぐ空間
在宅ワークしやすい家
間取り変更あり(間取り図掲載)

中古を買ってリフォーム
収納を充実させたい
リフォームで食事が楽しくなる
ペットと快適に過ごす
夫婦でゆったりくつろぐ空間
家族の会話が増える
間取り変更あり(間取り図掲載)

二世帯住宅
収納を充実させたい
デザインリフォーム
子育てしやすい家
家族の会話が増える
鉄骨造の家

二世帯住宅
収納を充実させたい
デザインリフォーム
子育てしやすい家
リフォームで食事が楽しくなる
ペットと快適に過ごす
一人を愉しむ空間
夫婦でゆったりくつろぐ空間
在宅ワークしやすい家
趣味の空間
コレクションを大切にする
家族の会話が増える
家族の適度な距離感を創る
間取り変更あり(間取り図掲載)

収納を充実させたい
夫婦でゆったりくつろぐ空間
ロードバイクを愉しむ
家族の適度な距離感を創る
間取り変更あり(間取り図掲載)