WORKS
施工事例
東京都多摩市I様邸
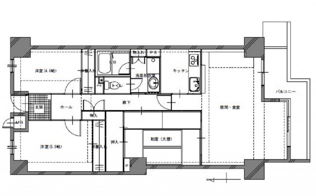
子供の成長に伴い、奥様のご実家に近いマンションに住むことになったお施主様。これから大きく成長していくお子様たちとの時間を大切にしたい。
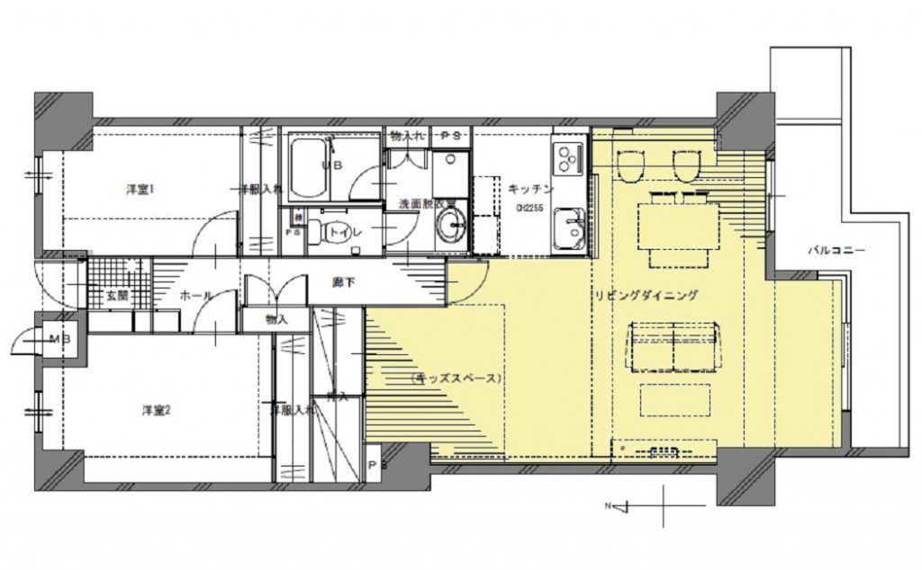
好きなインテリアに囲まれた心地の良い空間にしたいとのご要望をお持ちでした。プランのポイントとしては、ご家族のこれからの10年間を最大限楽しめる空間作りを心がけました。リビングに併設していた和室を取り払い、お子様たちが走り回れるような広々としたリビングにしました。
そんなリビングには家事をしながらでもお子様たちが遊んでいる様子が見られるように、キッズスペースを設けました。またご主人様がお仕事をしながらでも家族の時間が楽しめるようにと、ワークスペースもリビングの一角に設けました。
ワークカウンター上に取り付けた飾り棚は、資料や本などがたっぷりと置くことができ、ご趣味のインテリア雑貨などを飾れるとても素敵な空間になっています。光が差し込む窓側につけたハンモックはお子様たちの楽しい遊び場になりました。リビングの入口は空間の広さを確保しつつ、将来的には個室も設計できるように位置を変更しました。
担当店:リフォームプライス多摩店
タイプ
RC
家族構成
ご夫婦+お子様2人
築年数
30年
施工金額
250万円
工期
1か月
リフォーム面積
75㎡
使用した商品
■リビング入口建具:LIXIL
■ファミリーライン/フローリング:ボード
■ワイルド45/パネリング:マルホン ホワイトウッド
リフォーム箇所
リビング、ダイニング
ご主人様のご趣味の「仏像リンク」という特設ページです。仏像マニア必見の楽しいサイトです♪
WORKS同じタグの付いている事例

デザインリフォーム
子育てしやすい家
家族の会話が増える

収納を充実させたい
子育てしやすい家
リフォームで食事が楽しくなる
実家への住替え
出産を機に
在宅ワークしやすい家
家族の会話が増える
間取り変更あり(間取り図掲載)

収納を充実させたい
子育てしやすい家
家族の適度な距離感を創る
間取り変更あり(間取り図掲載)

中古を買ってリフォーム
収納を充実させたい
デザインリフォーム
リフォームで食事が楽しくなる
自然素材に囲まれる
夫婦でゆったりくつろぐ空間
コンテスト受賞事例
趣味の空間

中古を買ってリフォーム
デザインリフォーム
ペットと快適に過ごす
自然素材に囲まれる
在宅ワークしやすい家
間取り変更あり(間取り図掲載)

収納を充実させたい
デザインリフォーム
リフォームで食事が楽しくなる
家族構成の変化
子供の独立を機に
夫婦でゆったりくつろぐ空間
在宅ワークしやすい家
趣味の空間
家族の会話が増える
家族の適度な距離感を創る
間取り変更あり(間取り図掲載)