WORKS
施工事例
神奈川県川崎市A様邸
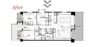
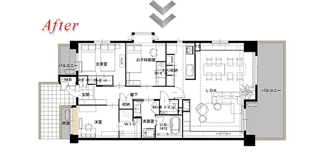
築20年近いお住まい、全体的に経年劣化が気になること、インテリアの雰囲気もお好みでなく、気分を一新したいとの思いから、リフォームのご依頼をいただきました。
上手く使えていなかった和室をリビングにとりこみ、LDには窓が3面になり、最上階・角部屋というメリットを最大限に生かせるLDに生まれ変わりました。
ご自宅で教室を開かれていて、生徒さんやお友達をお招きされることが多い奥様。教室の為の材料や道具など、必要なものはたくさんあるのに、収納量が全く足りていませんでした。
『必要な場所に、使いやすい収納』を考え、寸法計画、見え方など、細かいところまで一緒に打ち合わせをさせていただきました。
完成後は、普段のご生活も教室にも過不足のない収納を備えながら、すっきりと広がりを感じられる空間になりました。
担当店:リフォームプライス横浜青葉店
川崎市麻生区の中古マンションの状況、リフォームを含めた費用についてこちらで詳しく解説しています
(コラムページが開きます)
WORKS同じタグの付いている事例

子育てしやすい家
家族の会話が増える

二世帯住宅
家族構成の変化
ペットと快適に過ごす
自然素材に囲まれる
趣味の空間
間取り変更あり(間取り図掲載)

収納を充実させたい
デザインリフォーム
リフォームで食事が楽しくなる
家族構成の変化
子供の独立を機に
夫婦でゆったりくつろぐ空間
家族の会話が増える
家族の適度な距離感を創る
間取り変更あり(間取り図掲載)

中古を買ってリフォーム
子育てしやすい家
リフォームで食事が楽しくなる
一人を愉しむ空間
入園、入学を機に
趣味の空間
コレクションを大切にする
家族の会話が増える
間取り変更あり(間取り図掲載)

収納を充実させたい
デザインリフォーム
リフォームで食事が楽しくなる
一人を愉しむ空間
実家への住替え
在宅ワークしやすい家
家族の会話が増える
家族の適度な距離感を創る
間取り変更あり(間取り図掲載)
鉄骨造の家

収納を充実させたい
夫婦でゆったりくつろぐ空間
在宅ワークしやすい家
家族の適度な距離感を創る
間取り変更あり(間取り図掲載)