WORKS
施工事例
東京都杉並区K様
●リフォームのきっかけ
自分らしい暮らしがしたいと思っていたところ、フルスケルトン(柱も壁もない状態)の中古物件を見つけたことがきっかけ
●ご要望
家具屋「TRUK Furniture」が好きで、そのアイテムを活かせる世界感を形にしたかった。
●お客様のご感想
自分が思い描いたイメージをプランナーの彦坂さん、和田さんに伝え、こだわりを理解してもらった上で提案をしてくださったのがうれしかったです。なかでもお気に入りの場所はキッチンです。吊り棚や黒のタイル、床の長尺シートといったこだわりポイントも満載です。他にもシルバーのプレートのスイッチやコンセント。真鍮の見切りといった細かいところまで世界感を表現してもらえたのも大きなポイントです。
●スタッフコメント
お客様自信の「こうしたい」というイメージをいかにかなえられるか。と考えがらリフォームの打ち合わせを進めていきました。イメージを形にするのは大変ですが、出来上がった時の感動も大きいです!
タイプ
RC 造
家族構成
非公開
築年数
20年
施工金額
800万円
工期
2.5ヵ月
リフォーム面積
50㎡
使用した商品
■床材:ホームテックオリジナル「東京檜原村産ヒノキ無垢フローリング」
■タイル:名古屋モザイク,TOLA
■システムキッチン:クリナップ:ラクエラ
■タンクレストイレ:Panasonic「アラウーノS141」
■建具:プレイリーホームズ
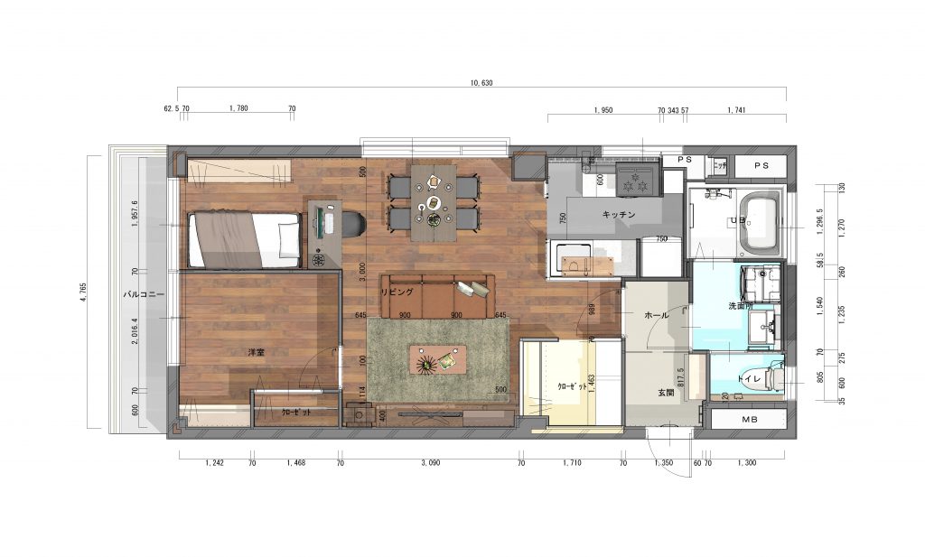
リフォーム箇所
トイレ、洗面、リビング、キッチン、ダイニング、浴室、寝室、廊下、造作家具
WORKS同じタグの付いている事例

デザインリフォーム
趣味の空間

収納を充実させたい
リフォームで食事が楽しくなる
ペットと快適に過ごす
子供の独立を機に
夫婦でゆったりくつろぐ空間
在宅ワークしやすい家
間取り変更あり(間取り図掲載)

リフォームで食事が楽しくなる
実家への住替え
夫婦でゆったりくつろぐ空間
在宅ワークしやすい家
コレクションを大切にする
家族の会話が増える
間取り変更あり(間取り図掲載)

収納を充実させたい
デザインリフォーム
リフォームで食事が楽しくなる
家族構成の変化
ペットと快適に過ごす
一人を愉しむ空間
在宅ワークしやすい家
コレクションを大切にする
間取り変更あり(間取り図掲載)

二世帯住宅
デザインリフォーム
リフォームで食事が楽しくなる
ペットと快適に過ごす
実家への住替え
夫婦でゆったりくつろぐ空間
家族の会話が増える
間取り変更あり(間取り図掲載)
鉄骨造の家

中古を買ってリフォーム
収納を充実させたい
リフォームで食事が楽しくなる
ペットと快適に過ごす
家族の適度な距離感を創る
間取り変更あり(間取り図掲載)