WORKS
施工事例
東京都狛江市K様
●リフォームのきっかけ
お爺様、お婆様がお住いだったお家を引き継ぐことになりましたが、築年数も経っているため、リフォームで自分好みの家にしたいと考えられたのがきっかけでした。
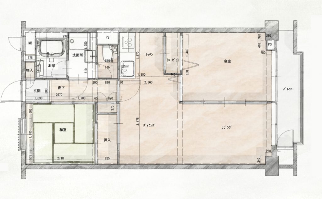
水廻りは小さく奥まっているため暗く、使い勝手も悪い状態でした。
またリビングに梁や間仕切りがあり、お部屋に一体感がありませんでした。
●ご要望
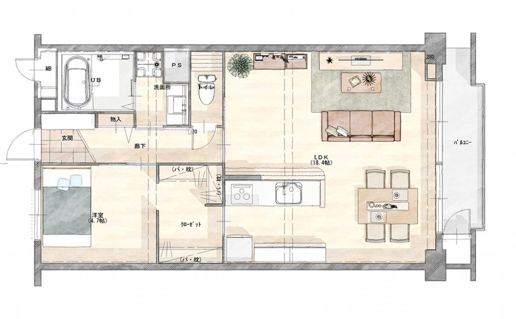
・和室を寝室として使いLDKを広くとりたい
・水まわりは配管も含めて全てを新しくしたい
・キッチンは出来れば対面がよい(吊り戸棚もなしのオープンな雰囲気で)
・浴室は広げられるなら広げたい
・木の温かみが欲しい(ナチュラルな感じ)
・今後、結婚したり子供ができたりとライフスタイルが変わってもある程度までは対応したい
●スタッフコメント
打合せを進めていくなかで
「リフォーム前に使っていたものをリフォーム後に使うのも面白いのかなと思って…」と、おじい様とおばあ様が長く使っていたダイニングテーブルを残すことにしました。
新しくなったお部屋に馴染むダイニングテーブルが以前より素敵に見えたのを覚えています。
リフォーム後にはご家族で新しいお家で過ごされたとお話を頂きました。
家族から家族へ住み継がれていき、家族の繋がりも感じられたリフォームになっていれば…と思っております。
タイプ
RC造
家族構成
1人
築年数
47年
施工金額
790万円
工期
2ヶ月
リフォーム面積
50㎡
リフォーム箇所
トイレ、洗面、リビング、キッチン、ダイニング、浴室、寝室、廊下
WORKS同じタグの付いている事例

中古を買ってリフォーム
収納を充実させたい
デザインリフォーム
子育てしやすい家
在宅ワークしやすい家
間取り変更あり(間取り図掲載)

中古を買ってリフォーム
収納を充実させたい
子育てしやすい家
家族構成の変化
家族の会話が増える
家族の適度な距離感を創る
間取り変更あり(間取り図掲載)

収納を充実させたい
デザインリフォーム
リフォームで食事が楽しくなる
ペットと快適に過ごす
実家への住替え
夫婦でゆったりくつろぐ空間
在宅ワークしやすい家
コレクションを大切にする
家族の会話が増える
間取り変更あり(間取り図掲載)

収納を充実させたい
リフォームで食事が楽しくなる
子供の独立を機に
一人を愉しむ空間
夫婦でゆったりくつろぐ空間
在宅ワークしやすい家
入園、入学を機に
趣味の空間
コレクションを大切にする
間取り変更あり(間取り図掲載)

デザインリフォーム
リフォームで食事が楽しくなる
家族構成の変化
一人を愉しむ空間
自然素材に囲まれる
夫婦でゆったりくつろぐ空間
趣味の空間
コレクションを大切にする

二世帯住宅
収納を充実させたい
デザインリフォーム
子育てしやすい家
リフォームで食事が楽しくなる
家族構成の変化
実家への住替え
出産を機に
夫婦でゆったりくつろぐ空間
在宅ワークしやすい家
家族の会話が増える