WORKS
施工事例
東京都多摩市S様
●リフォームのきっかけ
漏水事故により、内装や家財、衣類、趣味で集めたマンガ本など全てが水浸しになり、リフォ-ムせざるを得ない状況となっていました。
限られた予算内で本当に住める家にすることが出来るのか?とかなりご不安に思われていました。
現地調査にお伺いした際、「住み慣れたこの家は、生前の主人との思い出が沢山つまっているし、6階から見えるこの景色が大好きなのよ…」と話されていたのが印象的でした。
そんなS様にご提案をするにあたり、しっかりと機能回復させ、ご不安のない状態でこの家に住んでいただきたいと考えました。
●お悩み・ご要望
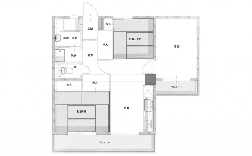
・面積に対して部屋数が多く、玄関や脱衣所が狭いので、部屋数を減らして広くしたい
・猫ちゃんのトイレから水場が遠くお掃除もお世話も大変
・お部屋を明るくしたい
●リフォームのポイント
安心・安全対策
・下階への漏水を防ぐ対策を実施
・全室引き戸にし、有効開口を確保
・浴室に手すりの取り付けとヒ-トショック対策を実施
・断熱窓の設置
間取りの工夫
・物置となっていた和室をなくし向きを変えることで、カ-トを置いても広い玄関に
・洗面室を中央に広く取り、トイレ・ご飯・猫グッズの収納全てを集約、掃除機も近くにセットできるようにしたことで、猫ちゃんのお世話の時短に
●お客様のコメント
家に合うものを買い揃える楽しみができました。掃除もしやすいし使い易いです。
フリ-スペ-スには好きな絵も飾れるし、娘の七五三の時に母が作ってくれた木目込みの7段飾りのお雛様を飾る場所が出来てすごくうれしいです。
休みの日は、近くに住む孫と過ごす時間も増えたし、楽しく生活しています。
リフォーム種別
タイプ
RC造
家族構成
お一人+愛猫
築年数
35年
施工金額
630万円
工期
非公開
リフォーム面積
59㎡
リフォーム箇所
洗面、リビング、キッチン、ダイニング、浴室、寝室、廊下、トイレ
WORKS同じタグの付いている事例

収納を充実させたい
デザインリフォーム
家族構成の変化
夫婦でゆったりくつろぐ空間
在宅ワークしやすい家
間取り変更あり(間取り図掲載)

二世帯住宅
収納を充実させたい
デザインリフォーム
子育てしやすい家
リフォームで食事が楽しくなる
ペットと快適に過ごす
一人を愉しむ空間
夫婦でゆったりくつろぐ空間
在宅ワークしやすい家
趣味の空間
コレクションを大切にする
家族の会話が増える
家族の適度な距離感を創る
間取り変更あり(間取り図掲載)

収納を充実させたい
趣味の空間
コレクションを大切にする
間取り変更あり(間取り図掲載)

収納を充実させたい
デザインリフォーム
リフォームで食事が楽しくなる
ペットと快適に過ごす
子供の独立を機に
夫婦でゆったりくつろぐ空間
在宅ワークしやすい家
趣味の空間
家族の会話が増える
家族の適度な距離感を創る
間取り変更あり(間取り図掲載)

中古を買ってリフォーム
収納を充実させたい
子育てしやすい家
リフォームで食事が楽しくなる
趣味の空間
間取り変更あり(間取り図掲載)

収納を充実させたい
リフォームで食事が楽しくなる
家族構成の変化
子供の独立を機に
夫婦でゆったりくつろぐ空間
間取り変更あり(間取り図掲載)