WORKS
施工事例
横浜市K様
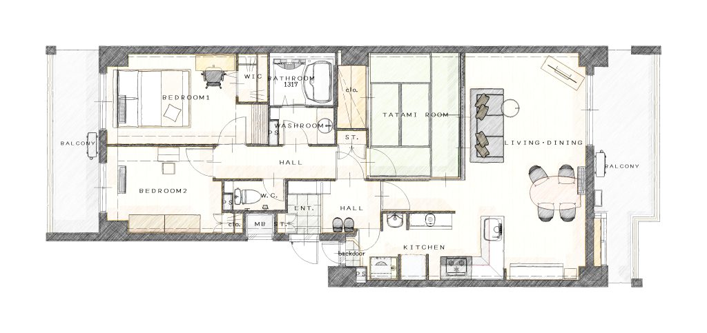
お子様が独立され、これからのご夫婦2人とわんちゃん2匹との暮らしを快適に過ごせるようにしたい、というのがきっかけでした。
・LDKを広々とさせたい
・小さくても良いので、それぞれの個室が欲しい
・浴室、洗面室が狭いので広々させたい
・わんちゃんにとっても快適に過ごせるようにしたい
・収納を充実させてすっきり暮らしたい
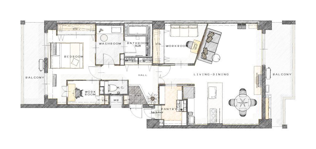
今の住まいでのお気に入りは、リビングからの眺めが良いこととお伺いし、そのお気に入りポイントを存分に楽しめる間取りをご提案しました。
とても仲の良いご夫婦ですが、やはり1人で集中したい時間も大切。昔から自分だけの個室があることに憧れがあるという奥様のお話しを聞き、それをいちばん良いかたちで叶えないといけないと思いました。
わんちゃんの健康も考えて、床材はすべりにくい素材に。家の端から端までわんちゃんだけの抜け道があるので、元気に走り回ってくれるのが、ご夫婦も私たちも嬉しかったです。
ソファからの眺めが前よりもっと楽しめるようになって、とても居心地の良いリビングになりました。
わんこ2匹も抜け道を通って家中どこでも行けるので、楽しんでくれています。
個室もできて、お互い好きなことに集中できるので、元々家で過ごすのが好きでしたが、もっと好きな家になるようにこれからも色々飾ったり、カスタマイズして楽しんで過ごしたいと思います。
広く見える工夫:ナナメの壁をつくるこで、視覚的な広がり感を演出しました。
ライティングの工夫:間接照明で高級感を演出。リビングから奥様の部屋まで通る間接照明も、空間のつながり感を出すのに一役買っています。
タイプ
RC造
家族構成
ご夫婦+犬2匹
築年数
25年
施工金額
1380万円
工期
3か月
リフォーム面積
82㎡
使用した商品
キッチン・浴室:Panasonic「Lクラス」
洗面化粧台:TOTO「エスクア」
トイレ:TOTO「レストパル」
床材:LIXIL「ラシッサS耐水・ペット」
リフォーム箇所
トイレ、洗面、キッチン、リビング、浴室、ダイニング、寝室、廊下
WORKS同じタグの付いている事例

収納を充実させたい
リフォームで食事が楽しくなる
ペットと快適に過ごす
夫婦でゆったりくつろぐ空間
コレクションを大切にする
家族の会話が増える
家族の適度な距離感を創る
間取り変更あり(間取り図掲載)

収納を充実させたい
デザインリフォーム
リフォームで食事が楽しくなる
家族構成の変化
ペットと快適に過ごす
一人を愉しむ空間
在宅ワークしやすい家
コレクションを大切にする
間取り変更あり(間取り図掲載)

収納を充実させたい
デザインリフォーム
リフォームで食事が楽しくなる
家族構成の変化
子供の独立を機に
夫婦でゆったりくつろぐ空間
在宅ワークしやすい家
家族の適度な距離感を創る
間取り変更あり(間取り図掲載)

収納を充実させたい
デザインリフォーム
リフォームで食事が楽しくなる
家族の会話が増える
間取り変更あり(間取り図掲載)

収納を充実させたい
デザインリフォーム
コレクションを大切にする
間取り変更あり(間取り図掲載)

デザインリフォーム
夫婦でゆったりくつろぐ空間
趣味の空間
家族の会話が増える