WORKS
施工事例
品川区M様
お子様の成長に伴い、所有していたマンションへの住替えがきっかけでした。
このマンションを購入して使っていた際に(何年間かは賃貸として貸していた)、キッチンが閉塞的で、キッチンに立っている時に孤独感を感じていた。また、リビングも小さくはないが、なんとなく窮屈に感じていたので、LDKを広く明るい空間にしたい。
寝室横のW.I.C.もあまり収納ができず、寝室の方に置き家具の収納が出てきてしまって狭く感じていたので、収納を増やしたい。
どこかにお裁縫スペースがあるといいな…作業途中のままにしておけるようにしたい。
それぞれ違う趣味や好きなことがあっても、自然とみんなリビングに集まって来る。
家族ってそんな不思議な関係。
リビングで家族の存在を感じながらも、好きな事をして過ごすってとっても幸せな時間。
そんな風に過ごせるLDKを作れるようなリフォームにしたいと思い提案をしました。
リフォームにあたって4社に見積もりをお願いしましたが、他社を気にすることなく良い仕事をしたいという誠実さと提案された内容がとても良くこちらに決めました。フルリフォームということで決定事項、選択数も多く迷うことも多かったのですが、こちら目線で相談に乗ってくださり満足のできる仕上がりとなりました。私達の好みを理解して提案していただけました。細かい施工のお願いもしたので大変お手数をかけましたが、快く進めてくださいました。価格も満足しております。
担当の方々には大変お世話になり感謝しております。予想以上に快適に暮らせております。
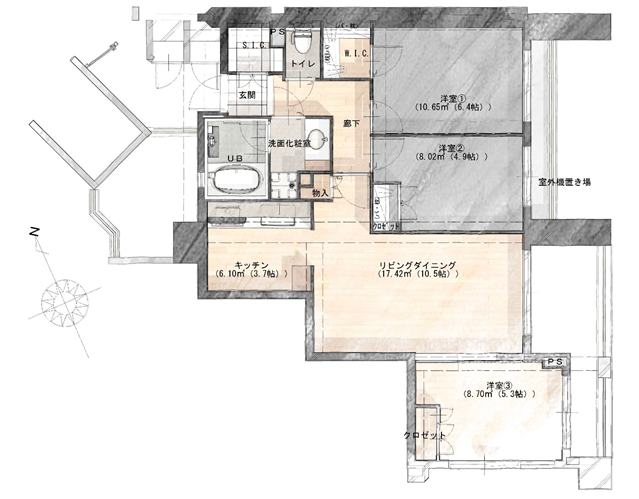
・キッチンは、横の壁を天井まで出なく、腰壁にすることで印象を変えた
・W.T.C.を作ったことで、収納力を増やすだけでなく、奥行感を出したことで視覚的に広く感じる
・奥行感を出すために洋室の窓をリビングに取り入れる事と同時に、奥まったところにデスクスペースを設けて、奥様のお裁縫スペースへ。
タイプ
RC造
家族構成
ご夫婦+お子様
築年数
21年
施工金額
800万円
工期
2か月
リフォーム面積
70㎡
使用した商品
キッチン:クリナップ「ステディア」
トイレ:LIXIL「リフォレ」
床材:DAIKEN「MYフロア」
リフォーム箇所
トイレ、洗面、リビング、ダイニング、キッチン、寝室、浴室、廊下
WORKS同じタグの付いている事例

リフォームで食事が楽しくなる
ペットと快適に過ごす
自然素材に囲まれる
在宅ワークしやすい家
趣味の空間

収納を充実させたい
デザインリフォーム
コレクションを大切にする

収納を充実させたい
リフォームで食事が楽しくなる
家族構成の変化
子供の独立を機に
一人を愉しむ空間
夫婦でゆったりくつろぐ空間
家族の適度な距離感を創る
間取り変更あり(間取り図掲載)

収納を充実させたい
リフォームで食事が楽しくなる
一人を愉しむ空間
自然素材に囲まれる
家族の会話が増える
間取り変更あり(間取り図掲載)

収納を充実させたい
デザインリフォーム
夫婦でゆったりくつろぐ空間
コンテスト受賞事例
趣味の空間
家族の会話が増える

収納を充実させたい
夫婦でゆったりくつろぐ空間
コレクションを大切にする