WORKS
施工事例
世田谷区Y様
娘様が結婚して家を出られるのを機にリフォームをご検討されました
キッチン横に窓はあったものの、もともと南側に2部屋個室があり、さらに構造の大きな梁があったため、太陽の光がダイニングの方に入ってこなかった。
寝室とは別に納戸があったが、もの居場所(収納場所)を決められていなかったので、ごちゃごちゃしていた。
もともとW.I.C.がある家に憧れがあることを聞いていたので、初回のプラン提案の商談でLDKにW.I.C.を作るプランを提案したところ、「この家の広さでも、リビングにW.I.C.が作れるんですね!!」と喜んでくださいました。
娘が家を出て夫婦2人での生活になったけど、リフォームして明るい家になったことで、娘がたまに遊びに来るのを楽しみに過ごせてます。娘もこんな家だったら、ちょくちょく帰ってきてくれそう(笑)
キッチンに立つ時間もすごく楽しい時間になってます。
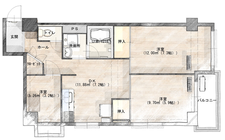
・これからは家にいる時間が長く、就寝時以外はリビングで過ごすようになると思うので、洋服の収納もリビングからのアクセスする場所に提案した。そうすることで、無駄な動線スペースも減らし、LDKを広くすることができた。
・その他の収納の解決方法は、水廻りを少しずつサイズアップして、トイレの収納はトイレ内に、洗面室(洗濯)の収納は洗面室内に作るように提案した。
・洗面室へもW.I.C.へもLDKからアクセスするので、キッチンで作業をしながら洗濯機の状況が把握でき、洗濯の洗う→干す→取り込むという家事動線も楽になり、散らからない部屋になるように提案した。
タイプ
RC造
家族構成
ご夫婦
築年数
49年
施工金額
850万円
工期
2か月
リフォーム面積
55㎡
使用した商品
キッチン:Panasonic「ラクシーナ」
洗面:Panasonic「シーライン」
トイレ:TOTO「GGシリーズ」
床材:DAIKEN「MYフロア」
リフォーム箇所
トイレ、キッチン、洗面、浴室、リビング、ダイニング、寝室、廊下
WORKS同じタグの付いている事例

子供の独立を機に
アウトドアリビング
コレクションを大切にする

収納を充実させたい
デザインリフォーム
家族構成の変化
夫婦でゆったりくつろぐ空間
在宅ワークしやすい家
間取り変更あり(間取り図掲載)

収納を充実させたい
デザインリフォーム
ペットと快適に過ごす
自然素材に囲まれる
家族の会話が増える
家族の適度な距離感を創る

夫婦でゆったりくつろぐ空間

収納を充実させたい
家族構成の変化
子供の独立を機に
夫婦でゆったりくつろぐ空間
コレクションを大切にする

中古を買ってリフォーム
収納を充実させたい
デザインリフォーム
リフォームで食事が楽しくなる
家族構成の変化
ペットと快適に過ごす
一人を愉しむ空間
夫婦でゆったりくつろぐ空間
在宅ワークしやすい家
趣味の空間
家族の会話が増える
間取り変更あり(間取り図掲載)