COLUMN
コラム
2024.08.17
キッチン
目次 [非表示]
憧れのマイホームを中古で購入し、SNSでおしゃれな住まいをリサーチする毎日。
キッチンはリビングの主役とも言える存在だからこそ、おしゃれには妥協したくないもの。
お気に入りの雰囲気の事例をたくさん調べて用意して、
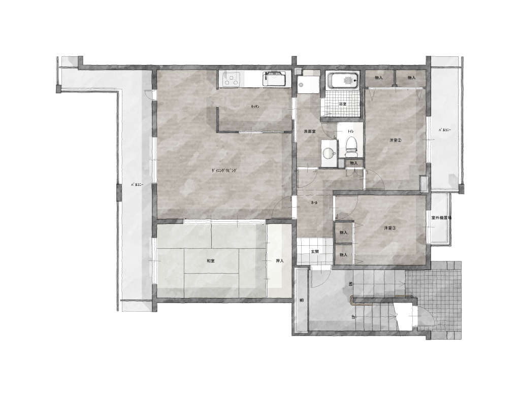
いざ、リフォーム!と購入済み物件の間取り図を手にしてお声かけいただいたお客様。
図面を元に担当者と話を進め、憧れの対面キッチンにするプランを出してもらいました。
「対面キッチンにすると、リビングがどうしても狭くなってしまいます。テレビの配置やダイニングテーブルをコンパクトにするなど工夫が必要ですね、、」と担当者。
集めたおしゃれなお住まいの写真はどれもが対面キッチン。物件購入時には対面キッチンにできないなんて考えてなかった。。。
落ち込む必要はありません。そこを乗り越えるのがリフォームの腕の見せ所です!
壁付のI型キッチンは、シンプルながらも機能性が高く、限られたスペースを最大限に活用できる設計が特徴です。近年、オープンキッチンやアイランドキッチンが注目される中で、壁付キッチンも工夫次第で十分にゲストを驚かせるおしゃれな空間を作り出すことができます。
リビングスペースの形が縦長だったり、抜けない柱があって対面化に無理がある場合や、マンションで配管スペースがうまく確保しづらい場合などは壁付けキッチンが大活躍。
このコラムでは、壁付のI型キッチンで空間をおしゃれにするための3つのポイントを事例を交えてご紹介します。

家がなんだかおしゃれじゃない。と感じる原因のひとつが「生活感」。
キッチン周りで生活感を感じるのは、ゴミ箱、冷蔵庫、ふきん、ラップやカラフルな調味料たちといったキッチンライフを支えるために必須のアイテムたちです。
リビングに入ってすぐにゴミ箱が見えていませんか?
冷蔵庫が丸見えで、マグネットでカレンダーが貼ってあったりしていませんか?
まずは画面から目を離して、ぐるっとお部屋をみてみてください。
おしゃれ空間への第一歩目のヒントが見つかるかもしれません。


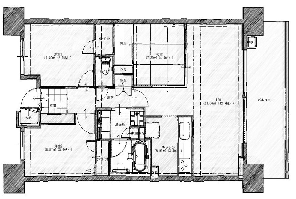
築28年の中古マンションを購入し、リノベーションされたご家族(30代ご夫婦+お子様)のリノベーション。
予算を抑えつつ、おしゃれな空間にするため、キッチンは移動せずそのまま壁付けI型タイプでプランニングしました。

キッチンはシンプルなTOTOのミッテを採用。カップボードは設けずに、置き家具で家電置き場を設け、コストを抑えています。

奥の浴室へと続く扉もおしゃれポイント。
ドア枠をなくし、白い引戸をつけて空間をコーディネートしています。
白×黒のシンプルなキッチンと合わせた建具のチョイスも素敵ですね。
ご予算次第ですが、壁紙や建具まで一緒に交換すると、統一感を持たせることができます。

次はリビング側から見てみましょう。もともとついていた、キッチンの入口の扉を取り払い、料理をしながらでもキッズルームが見えるように。
扉は生活感を隠すことはできますが、家事動線のことを考えると無くすのもありですね。

こちらは、子供の成長と家族構成の変化を機に築35年の中古マンションを購入しリフォームをした事例です。
お施主様のご要望は「森の借景や、街を見渡す眺望が気に入り手に入れた物件。もともと所有していた絵画や家具と調和し、明るくシンプルに、建築の良さを活かすインテリアにしたい。」というもの。
家具設計士として働くご主人様のセンスが盛り込まれたお住まいのキッチンも壁付のI型を採用することになりました。
センス抜群のご家族が取り入れたキッチンを見てみましょう。

ダイニング側からキッチンの背面収納や、リビングのTVボードが見えないように設計したリビングダイニング空間。扉を設けずにアクセスしやすいキッチンです。
キッチンはLIXILのベーシックモデル「シエラS」を採用しています。
床材がキッチン部分だけアクセントで素材・色が切り替わっているのもポイント。
このお住まいはリビングダイニングに絨毯を採用しているため、キッチンの床を切り替える必要がありました。
床材として採用したのは「リノリウム」という天然素材の長尺シート。塩ビではなく天然由来でできているため、家庭の健康へも配慮された優秀なアイテムです。
”生活感”を感じさせないシンプルでスタイリッシュな空間になりました。
ここまでご紹介した事例は、リビングと併設した独立キッチンでした。
リビングの正面にキッチンを配置する場合は、生活感の全てを隠すことは難しくなります。
そんな時は思い切って派手な柄や色にするのもおすすめです。

キッチンの扉のカラーバリエーションは多いメーカーでは30種類以上もあり、シンプルな色から派手な色まで豊富なラインナップがあるのはご存知でしょうか?
ウッド調やモルタル調といったインテリアに馴染みやすいカラーが人気ですが、黄色や青といったビビットカラーの単色も効果的に使うとおしゃれです。


ご夫婦とお父様の世帯が同じフロアに並ぶ間取りで、いかにスペースを有効活用するかが工夫のポイントでした。キッチンは対面化させようと悩みましたが、どうしてもリビングの空間を狭めてしまうため、あえて壁付けにすることで広々とした空間を確保しています。

目を引く黄色のキッチンはLIXILのベーシックモデル「シエラS」を採用。カラーは「ソリッドイエロー」という艶消しのマットな黄色を選びました。
派手な色ですが、マットな質感で高級感があります。

ダイニングチェアで同じ黄色を拾って、キッチン単体が浮きすぎないようにバランスを見事にとっています。
正面のキッチンパネルは白ではなく、グレーがかった色で空間に馴染むようにしています。
来客の反応が楽しみになるようなリビングですね。
▽このキッチンはルームツアー動画で詳しく解説しております(キッチン解説からスタートします)

キッチンパネルではなく、タイルを使うことで、キッチン本体はシンプルでも、オリジナリティを出すことができます。
外出先の施設やカフェの水廻りをよくみてみてください。
おしゃれな水廻りにはタイルが使われていることが多いんです。


中古マンションの購入をきっかけに、孤立したキッチンをリビングに取り込むリノベーションをされたお施主様。
リビング空間を広く取るためにキッチンは壁付にしています。リビングの顔になるキッチンは「自分らしく!」をテーマに好きなもので仕上げました。

緑のタイルが印象的なキッチン。キッチン本体はクリナップのステディアを採用しました。
タイルはおしゃれさんに大人気の「名古屋モザイク」のマルアークというシリーズをチョイス。
ダイニングチェアも緑が入っていて、空間に馴染んでいます。
キッチン空間だけ床材を張り分け、丈夫ながらも冷えにくいサーモタイル仕様にしています。

料理器具もインテリアとしておしゃれに飾っています。
色味を統一させることで、ごちゃつきを感じさせません。
タイルの目地は真っ白ではなく淡いグレーにすることでコントラストがつきすぎないようにしています。
目地材:LIXIL 内装用防汚目地材 スーパークリーン キッチン「KS-32K」


お子様3人と住める庭付きの築41年のタウンハウスに引っ越すことになったため、リノベーションをされたご家族。
壁を動かすことが難しい構造ということもあり、キッチンの対面化は難しく、いかにリビングとキッチンに一体感を持たせられるかがテーマでした。


キッチンはクリナップのステディアを採用。
タイルを貼り、リビングからちらっと見えるキッチンがワンランク上の空間を演出しています。
もちろん、冷蔵庫やゴミ箱はリビング側からは見えない様に配慮しています。


使用したタイルはタイルパークのモットというシリーズ。
タイルは世の中に多くの種類が存在しますので、ビビッとくるお気に入りの商品を探してみてください。
おすすめメーカーは、名古屋モザイク、タイルパーク(TNコーポレーション)、平田タイル、アドヴァンあたりがおしゃれなものが多いです。
▽こちらのキッチンはルームツアー動画(4分11秒あたりから)で紹介しています
壁付だからおしゃれな空間にできない。なんてことはありません。
むしろ、コストを抑えることができたり、リビングダイニングの空間を広々とれるといったメリットがあるのも壁付キッチンならでは。
ただし、キッチンを交換したからといって、魔法のようにおしゃれなお住まいに生まれ変わるわけではありません。
今回お伝えしたかったこと。
おしゃれへの近道は”生活感”をいかに抑えるか。という点がもっとも重要です。
まずは自分のお住まいの”生活感”を感じるアイテムを書き出してみるのもいいかもしれません。
キッチンのリフォームは100万円を超えるほど、大きな買い物です。
おもわず人を招きたくなるような、世界にひとつだけのキッチン空間を作ってみてはいかがでしょうか。
わたしたちリフォームプライスはリフォーム専業30年以上のブランドです。
ブランドコンセプトは「古くなったものを新しくするだけではなく、暮らしのなかに”幸せな変化”を生み出すこと」
キッチンリフォームの悩みの多くが「対面キッチンにできない」というもの。
「憧れの対面キッチン」にこだわりすぎてはいませんか?
できないからといって悲しむ必要はありません。
キッチンに悩む方はぜひ私たちにご相談ください。
リフォームを通じて、毎日が少しでも明るく楽しくなるように願っております。
今回ご紹介した事例以外にも、さまざまなスタイルやアイデアを取り入れたキッチンのリフォーム事例が見れる「水廻り事例集」を無料で閲覧いただけます。
▽このように細かく事例をご紹介!品番まで掲載されている事例集はリフォームプライスだけ!そのまま真似することができるおしゃれな事例集です
事例集はこちらからお申し込みいただけます。
※執拗な営業電話は致しませんのでご安心ください