WORKS
施工事例
東京都多摩市S様
■リフォームしたきっかけ
水廻りの交換を前々から思っていた。仕事も在宅ワークになってしまい。生活の変化に合わせたリフォームを検討。
■お客様のご要望
・広いお風呂が欲しい
・キッチンにもこだわりたい
・モノが多いので収納を増やしたい
■担当者コメント
弊社のイベントに来て頂いたのがお付き合いのきっかけでした。
コロナ禍で生活の変化があった事もありリフォームをご検討頂き、収納やお風呂、キッチン、ワークスペースをポイントにいくつかプランを出させて頂きました。中でもキッチンの位置のかわるこちらのプランを採用頂きました。
間取りは依然と比べて変わりましたが、思い入れのある家具や絵、好きなお酒や靴やお洋服、2人の旅の思い出など…
それぞれ居場所を見つけて新しいお家をより素敵な空間にしていました。
お2人らしさの詰まったお家でお家の時間もお楽しみいただければ幸いです。
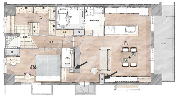
■パイプスペースの工夫
マンションには必ずあるパイプスペース(PS)。リフォームの際はあえてアクセントにしたり、うまく収納スペースに取り込んだりと工夫が必要です。
▽S様のパイプスペースの位置はココ

▽S様のプランではリビングのPSは濃紺のクロスでアクセントに

▽TVの裏にもパイプスペースがありますが、ワインセラーを置ける収納スペースとしています


▽普段はロールスクリーンで隠すことが出来ます

■回遊できる大収納
靴が大好きなご夫婦のために、玄関からアクセスできるウォークスルークローゼットは一部屋分使って贅沢に設けています。


-この事例がピックアップされているコラム一覧-
タイプ
RC造
家族構成
ご夫婦
築年数
25年
施工金額
1880万円
工期
2か月
リフォーム面積
非公開
使用した商品
キッチン:WOOD ONE「スイージー」
床材:朝日ウッドテック「ライブナチュラルプレミアム」
トイレ:LIXIL「サティスS」
リフォーム箇所
トイレ、洗面、キッチン、リビング、浴室、ダイニング、寝室、廊下、屋根
WORKS同じタグの付いている事例

中古を買ってリフォーム
子育てしやすい家
リフォームで食事が楽しくなる
一人を愉しむ空間
入園、入学を機に
趣味の空間
コレクションを大切にする
家族の会話が増える
間取り変更あり(間取り図掲載)

収納を充実させたい
デザインリフォーム
リフォームで食事が楽しくなる
ペットと快適に過ごす
子供の独立を機に
夫婦でゆったりくつろぐ空間
在宅ワークしやすい家
趣味の空間
家族の会話が増える
家族の適度な距離感を創る
間取り変更あり(間取り図掲載)

中古を買ってリフォーム
収納を充実させたい

収納を充実させたい
デザインリフォーム
リフォームで食事が楽しくなる
コンテスト受賞事例
趣味の空間
間取り変更あり(間取り図掲載)

デザインリフォーム
リフォームで食事が楽しくなる
家族の適度な距離感を創る

中古を買ってリフォーム
収納を充実させたい
デザインリフォーム
子育てしやすい家
リフォームで食事が楽しくなる
家族構成の変化
自然素材に囲まれる
出産を機に
在宅ワークしやすい家
入園、入学を機に
家族の会話が増える
家族の適度な距離感を創る
間取り変更あり(間取り図掲載)