WORKS
施工事例
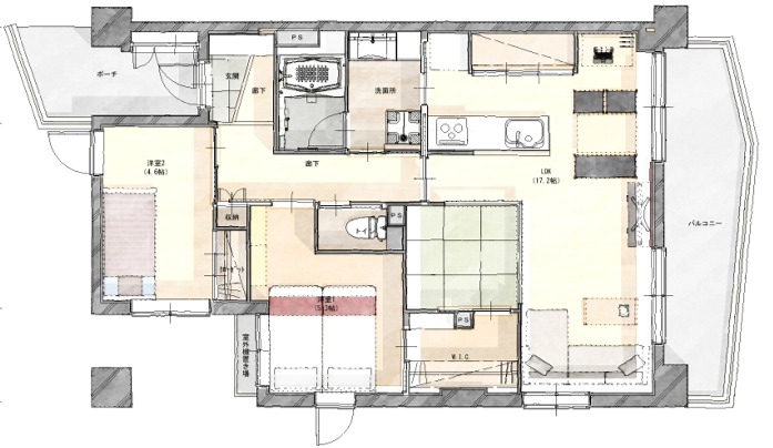
東京都武蔵野市F様邸
娘様が小学生に上がる頃になり、リフォームを検討。元々3年前より弊社にご相談頂いていて、資金計画が立たないとのことで、一度断念されていましたが、この度再度リフォーム計画を再開しました。一番のご要望は、キッチンにありました。孤立して狭いキッチンは、動線も悪く、また、夏場の暑さがとてもひどく扇風機を入れている状態でした。それによってまた、動線が悪くなり、家事への嫌悪感と家族とのふれあいを増やしたいとリフォームを検討されました。プランでこだわったのは、ご家族のふれあいを増やすことに注力しました。とても仲の良いご家族で、リフォーム後もそんな3人の時間を多く過ごしてほしいと思いました。具体的には、「視線が交わる回数を増やすこと」です。LDKのどこに居ても背を向けることなくお互いへ視線が向くような配置にすることで、勉強を教えているご主人と娘さんをキッチンで作業する奥さんが横目で見ていたり、奥様と娘様がキッチンで仲良く料理をしているところを、リビングでくつろぐご主人様が見て微笑んでいる。そんな空間になるよう心がけました。
担当店:リフォームプライス久我山店
WORKS同じタグの付いている事例

デザインリフォーム
一人を愉しむ空間
夫婦でゆったりくつろぐ空間

デザインリフォーム
夫婦でゆったりくつろぐ空間

収納を充実させたい
デザインリフォーム
リフォームで食事が楽しくなる
趣味の空間
間取り変更あり(間取り図掲載)

デザインリフォーム
子育てしやすい家
家族の会話が増える

中古を買ってリフォーム
子育てしやすい家
家族の会話が増える

中古を買ってリフォーム
家族の会話が増える