WORKS
施工事例
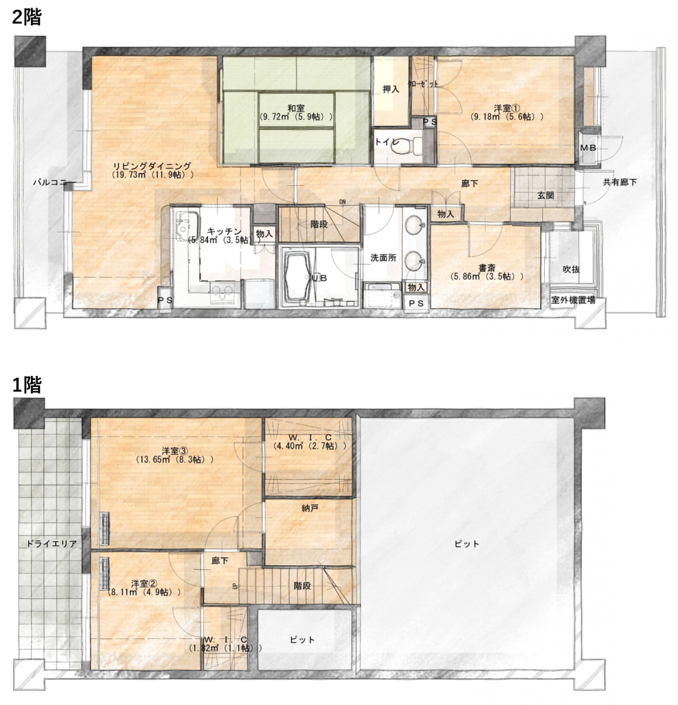
東京都世田谷区N様邸
【お客様の声】
●リフォームのきっかけ
ご両親との同居に伴い、中古マンションを購入。以前、元のお住まいの給湯器交換工事をしたことがあり、その際のことをよく覚えてて下さり、お声がけ頂きました。
●リフォームのこだわり
ご両親との同居に伴い、プライベート空間はわけてうまく生活したい。対面キッチンに憧れ、家族が多いので収納もたくさんとりたいが、予算があるので、使えるものは使ってリフォームしたいとご要望でした。
また、水廻りは基本一緒ですが、洗濯機だけは2台置きたいというこだわりを持っていらっしゃいました。
【担当者のコメント】
以前給湯器を交換させて頂いたお客様がご両親との同居をきっかけに再度お声がけ頂きました。4年経っていましたが、お客様もはっきり覚えていてくださいました。お客様のふわっとしたご要望を現地を見ながら解決してプランニング致しました。その場で具体的なイメージの共有ができたため打合せもスムーズでした。
担当店:リフォームプライス世田谷店
WORKS同じタグの付いている事例

中古を買ってリフォーム
家族の会話が増える

中古を買ってリフォーム
収納を充実させたい
子育てしやすい家
リフォームで食事が楽しくなる
自然素材に囲まれる
趣味の空間
家族の会話が増える
間取り変更あり(間取り図掲載)

中古を買ってリフォーム
デザインリフォーム
自然素材に囲まれる
在宅ワークしやすい家
家族の会話が増える

収納を充実させたい
リフォームで食事が楽しくなる
家族構成の変化
子供の独立を機に
一人を愉しむ空間
夫婦でゆったりくつろぐ空間
ロードバイクを愉しむ
コレクションを大切にする
家族の会話が増える
間取り変更あり(間取り図掲載)

デザインリフォーム
一人を愉しむ空間
自然素材に囲まれる
コレクションを大切にする

収納を充実させたい
デザインリフォーム
子育てしやすい家
リフォームで食事が楽しくなる
実家への住替え
自然素材に囲まれる
出産を機に
夫婦でゆったりくつろぐ空間
在宅ワークしやすい家
家族の会話が増える
間取り変更あり(間取り図掲載)