WORKS
施工事例
東京都多摩市H様
■リフォームしたきっかけ
中古住み替えをきっかけに、リノベーションのご検討。
■お客様のご要望
・開放感のあるLDKにしたい
・水回り設備の更新
・ご家族さまそれぞれに、個人のお部屋を設けたい。
・お子様が増えた時に、またお部屋を分割できるような要素も考えて計画したい
・ファミリークロークを設けたい
■担当者コメント
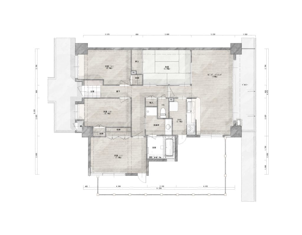
独立していたキッチン空間の間仕切り壁を取っ払い、ペニンシュラ型の対面式キッチンを配置する事で、LDKとして繋がりを持った開放的な空間となりました。お子様の様子を見守れたり、ご家族との会話が弾むような、あたたかさに包まれた空間となりました。ファミリークロークは、あえて収納を作り込まず、お客様にご購入いただいた収納家具を用いて、臨機応変に対応できる計画としています。 各お部屋には、空間に遊びを持たせてアクセントクロスを入れました。とくにお子様のお部屋は、ディズニーのアクセントクロスで、好きなものに囲まれた素敵な空間となっています。
タイプ
RC造
家族構成
ご夫婦+娘様
築年数
21年
施工金額
760万円
工期
2か月
リフォーム面積
90㎡
使用した商品
キッチン&カップボード:LIXIL「シエラS」
トイレ:LIXIL「アメージュZ」
洗面化粧台:LIXIL「エスタ」
床材:NODA「ネクシオ」
リフォーム箇所
トイレ、洗面、リビング、ダイニング、キッチン、寝室、浴室、廊下
WORKS同じタグの付いている事例

中古を買ってリフォーム
家族の会話が増える

収納を充実させたい
家族構成の変化
子供の独立を機に
在宅ワークしやすい家
コレクションを大切にする

中古を買ってリフォーム
夫婦でゆったりくつろぐ空間

中古を買ってリフォーム
収納を充実させたい
デザインリフォーム
子育てしやすい家
リフォームで食事が楽しくなる
家族構成の変化
自然素材に囲まれる
出産を機に
在宅ワークしやすい家
入園、入学を機に
家族の会話が増える
家族の適度な距離感を創る
間取り変更あり(間取り図掲載)

収納を充実させたい
デザインリフォーム
夫婦でゆったりくつろぐ空間
趣味の空間
コレクションを大切にする

リフォームで食事が楽しくなる
夫婦でゆったりくつろぐ空間
間取り変更あり(間取り図掲載)