WORKS
施工事例
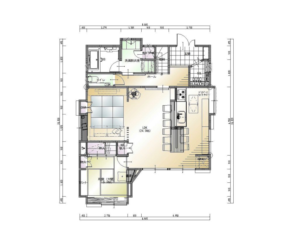
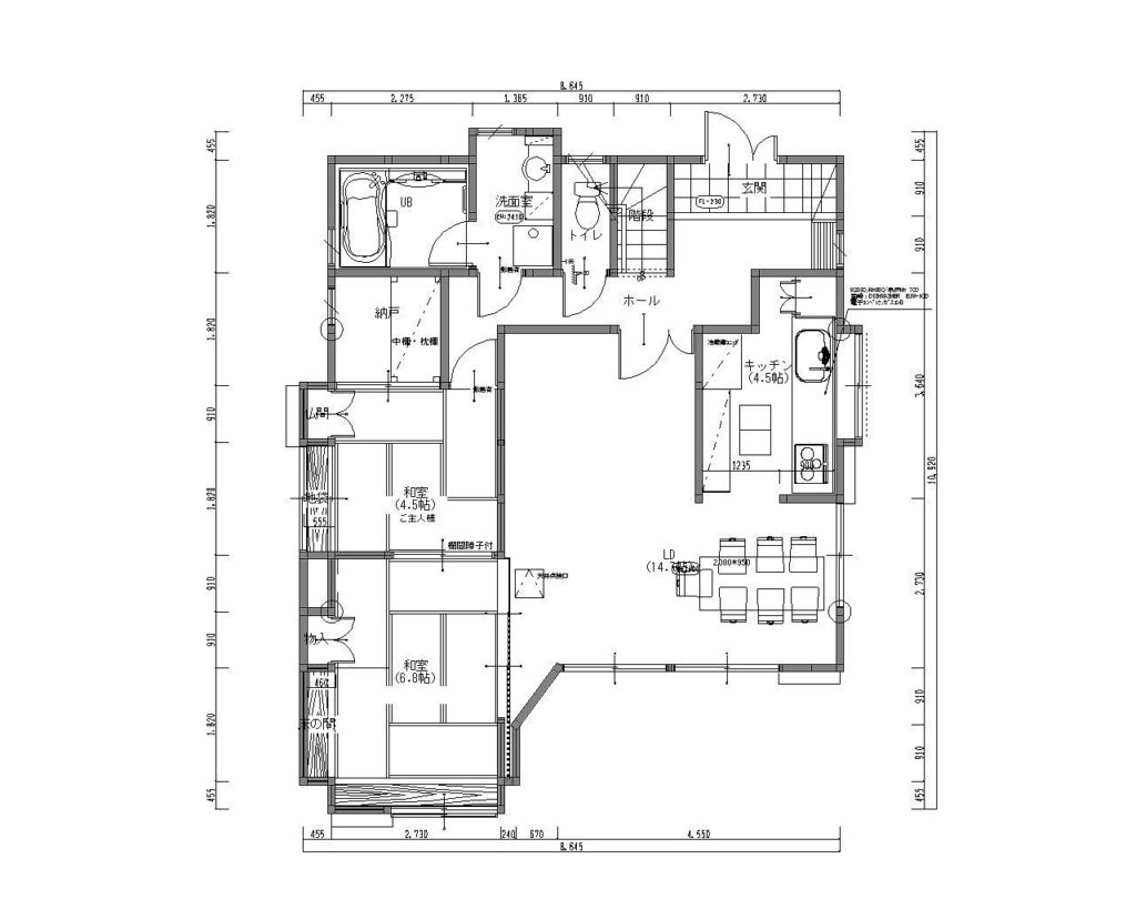
東京都八王子市K様邸
2015LIXILメンバーズコンテスト 「敢闘賞」受賞
ご家族が多人数になり、以前の区分けされ空気のこもる暗い家から、白を基調に広々としたモダンな家に一新するためリフォームをご決断。全ての窓を残す事で外壁補修コストを抑え、その窓を活かして光が部屋の隅々まで届くよう計画しました。また、キッチン中心のカウンターテーブルとし、家族の食事の時間差に対応。リビングは動線の衝突を避けるため奥に配置してゆったりと寛ぐスペースに。窓カウンターをサイドテーブルに見立て、余計な家具を置かない事で大家族が集う空間へ。中央は子供の遊び、勉強、友人のパーティスペース、老後の両親の趣味など、3世代の生活変化のためゆとりの空間として残しました。デザインとしては耐震上残す柱をアクセントに補強梁はご希望の間接照明へ。夜の雰囲気もまた格別です。トイレ、洗面室は位置を変えることで段差と狭さ暗さを解消し、老後の介助スペースにも備えて安心できる住まいとしました。後日伺うと、どこに居ても家族を見渡し、気持ちよい光と風を感じることができると仰っていただきました。
担当店:リフォームプライス八王子店
WORKS同じタグの付いている事例

家族構成の変化
コンテスト受賞事例
コレクションを大切にする

中古を買ってリフォーム
在宅ワークしやすい家
家族の会話が増える

収納を充実させたい
デザインリフォーム
リフォームで食事が楽しくなる
ペットと快適に過ごす
夫婦でゆったりくつろぐ空間
在宅ワークしやすい家
家族の会話が増える
間取り変更あり(間取り図掲載)

中古を買ってリフォーム
収納を充実させたい
デザインリフォーム
子育てしやすい家
リフォームで食事が楽しくなる
家族構成の変化
自然素材に囲まれる
出産を機に
在宅ワークしやすい家
入園、入学を機に
家族の会話が増える
家族の適度な距離感を創る
間取り変更あり(間取り図掲載)

中古を買ってリフォーム
収納を充実させたい
子育てしやすい家
家族構成の変化
コレクションを大切にする
家族の会話が増える
結婚を機に

中古を買ってリフォーム
デザインリフォーム
リフォームで食事が楽しくなる
夫婦でゆったりくつろぐ空間
家族の会話が増える
間取り変更あり(間取り図掲載)